View at Rosewood

View At Rosewood

1917 & 1919 Rosewood Street


Two 2-story Homes in the Museum District

$499,900

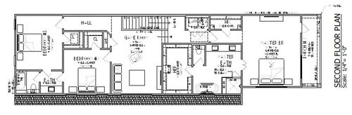
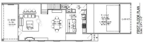
Two 2-story spacious luxury patio homes under construction at 1917 & 1919 Rosewood in the Museum District by quality builder Habitat Construction. First floor has open living with 10 foot ceilings, island kitchen, and high end finishes. Second floor has 3 bedrooms, 2 baths, utility room, game room, and covered balcony.

Click here for 1917 Rosewood St listing details
​​​​​​​

​​​​​​​Click here for 1919 Rosewood St listing details


FIRST FLOOR

​​​​​​​
Open Living

2 Car Garage

​​​​​​​Covered Patio


SECOND FLOOR

​​​​​​​
Gameroom

3 Bedrooms

​​​​​​​Covered Patio

Work With Young Realty Group

Follow Me on Instagram